Product Series
推薦產品
河南華東起重機械設備公司
服務熱線:400 086 9590
公司:河南華東起重機械設備有限公司
聯系人:賈經理
聯系電話:13903802779
地址:河南新鄉市封丘縣起重機工業園區
當前位置: 起重機 > 起重機文章
移動式登車橋技術參數
時間:2024-05-29來源:起重機廠家瀏覽次數:1
移動式登車橋產品介紹:
移動式登車橋是與叉車配合使用的貨物裝卸輔助設備,可根據汽車車廂的高低調節高度,叉車可以直接通過本設備駛入車廂內部進行貨物的連續裝卸,僅需單人操作,即可實現貨物的快速裝卸。它使企業減少了大量的勞動力,提高了工作效率,從而獲取g大經濟效益。
移動式液壓登車橋適用于裝卸頻繁、企業、倉庫、車站、碼頭、倉儲物流基地、郵政運輸、物流配送等單位的貨物裝卸。

移動式登車橋產品特點:
一、臺面采用特制的菱形網格板有可靠的強度,能保證長期使用而不變形。它的波形鋼格網狀結構,充分保證了卓越的防滑性能,使叉車有更好的爬坡性和可操縱性。即使在雨、雪天氣,仍能保證正常使用。
二、可調節長度的索鏈能方便地鉤住貨車,使登車橋與貨車始終緊密貼合。
三、采用手搖液壓泵作動力,勿需外接動力電源即可輕松實現登車橋的高度調節。
四、配置的剎車墊可有效防止貨車裝卸時登車橋移位。

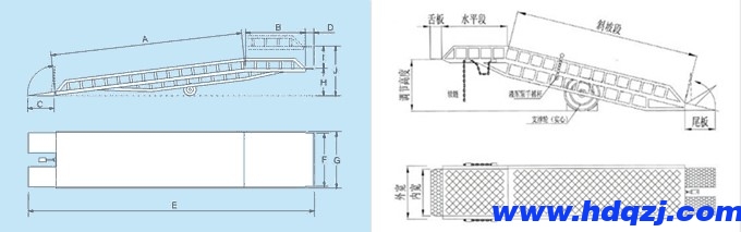
6-12噸移動式登車橋參數:
| 型號 Model | 載荷(t) | 平臺尺寸Platform Size(mm) | 工作高度Work Height(mm) | 整機重量 | ||||||||
| A | B | C | D | E | F | G | H | I | J | |||
| DCQY6-0.8 | 6 | 7000 | 2200 | 1000 | 400 | 10500 | 1900 | 2000 | 900 | 900 | 1800 | 2.1T |
| DCQY8-0.8 | 8 | 7000 | 2200 | 1000 | 400 | 10500 | 1900 | 2000 | 900 | 900 | 1800 | 2.3T |
| DCQY10-0.8 | 10 | 7000 | 2200 | 1000 | 400 | 10500 | 1900 | 2000 | 900 | 900 | 1800 | 2.5T |
| DCQY12-0.8 | 12 | 7500 | 2400 | 1500 | 400 | 11200 | 2000 | 2100 | 1000 | 800 | 1800 | 2.8T |




















